ベンツバス1号
大型
ベース車両
メルセデスベンツ・バス
全長
7,210mm
全幅
2,230mm
全高
2,950mm
車両重量
4630kg
年式(初度登録)
1994(平成6)年
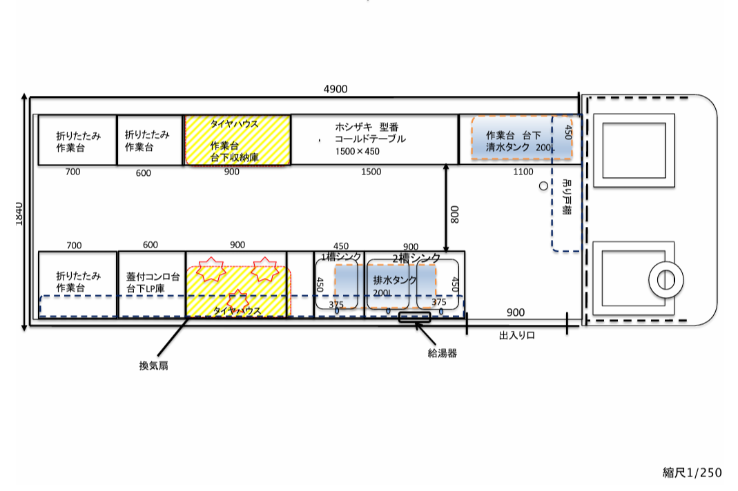
設備情報
設備
・2槽シンク+手洗いシンク
・格納式カウンター
・コールドテーブル(冷蔵77ℓ冷蔵135ℓ)
・給水タンク(200ℓ)
・排水タンク(200ℓ)
・格納式オーニング
・コンロ台
・プロパン庫
・換気扇
・外電引き込み口(1.5kw)
・作業台
・ガス式給湯器
・格納式カウンター
・コールドテーブル(冷蔵77ℓ冷蔵135ℓ)
・給水タンク(200ℓ)
・排水タンク(200ℓ)
・格納式オーニング
・コンロ台
・プロパン庫
・換気扇
・外電引き込み口(1.5kw)
・作業台
・ガス式給湯器
その他
看板サイズ
外寸:4505mm×1000mm
内寸:4455mm×955mm
(車内高:1920mm)
MT車
外寸:4505mm×1000mm
内寸:4455mm×955mm
(車内高:1920mm)
MT車


























